Australia

Under Contract

17 Possum Street, Trinity Beach, Qld 4879

# Location

Description

Elevated Sanctuary: Ocean Views Metres from the Beach Elevated to capture the spectacular ocean views this premium location affords, this impressive contemporary home showcases detail, function, and architectural consideration. Cocooned within lush tropical surrounds, one street from the beach, the layout encompasses two spacious levels, featuring high ceilings, a magnificent full-width deck, and fully self-contained guest quarters. Appointed to the highest standards throughout, a harmonious indoor/outdoor connection, and the generous use of glass creates a private sanctuary with a luxury coastal aesthetic.

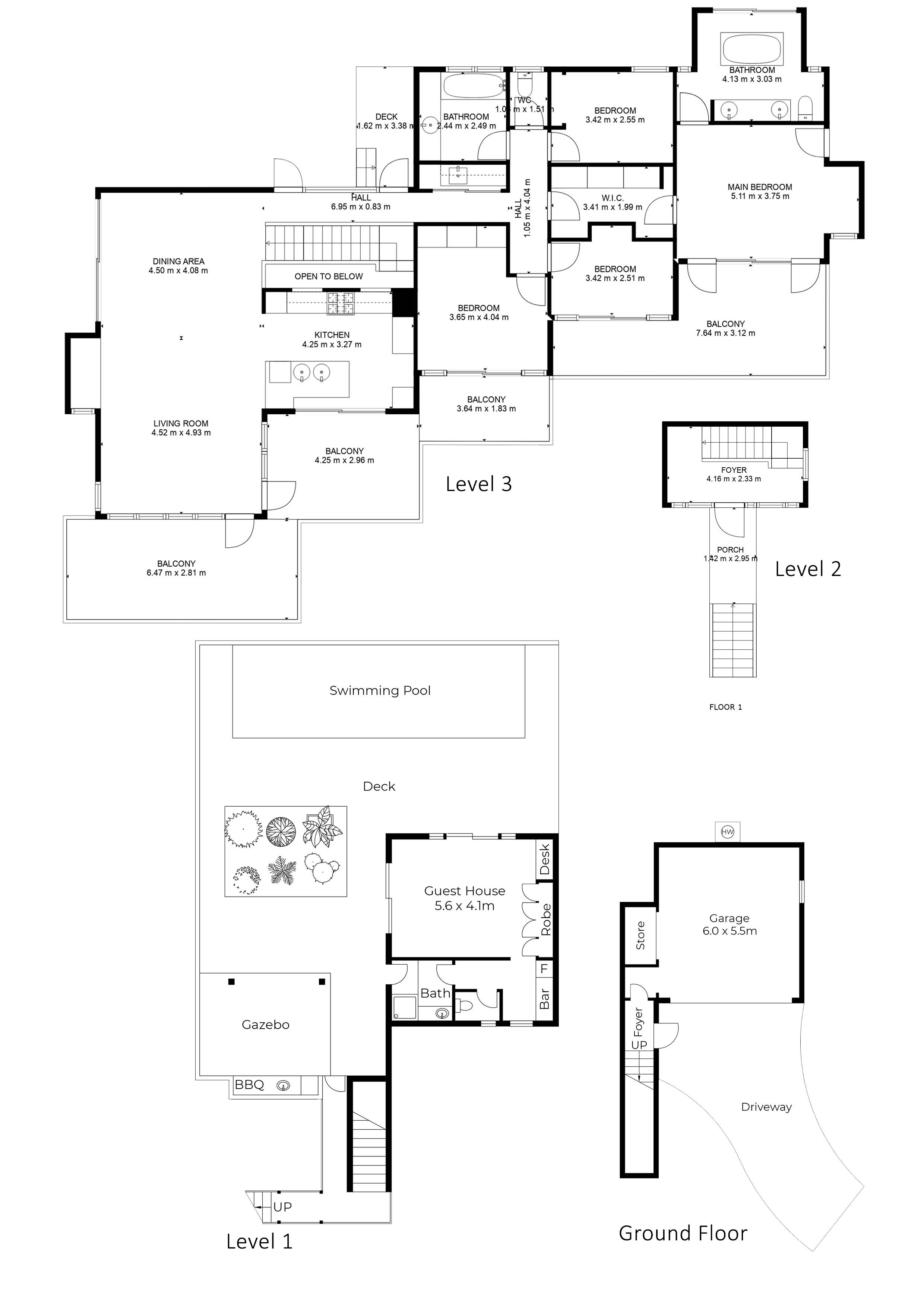
- Private, elevated location, one street back from the beach - Multi-award-winning design set over three main levels - Light-filled open plan living, with high ceilings and bi-fold doors to deck

- Full-width entertaining deck at tree-top level with ocean views - Three upstairs bedrooms, all with views, plus study/fifth bedroom

- Contemporary kitchen with sleek cabinetry, pantry, and gas cooking - Gorgeous master suite with WIR, ensuite and stunning aspect - Lower pavilion with self-contained guest quarters opening to expansive deck - Large heated pool with absolute privacy - 5kW solar power, windows fitted with UV heat reducing film - Double lock-up garage plus off-street parking for 3 cars - Elevated 1,058m2 block in white zone (low risk) with stunning gardens - Tightly held location, walk to beach, cafes, restaurants, and local shopping

View More #

Floor Plans

Location

  • Contact the agency

    To request an inspection

  • # Call # Email

Nicholas Slatyer

Agent Name

Renae Slatyer

Agent Name

# Report Listing

Looking for a property?

  • Top listings
  • Investment
  • Development
  • Personal home
  • Price reports
  • Suburb reports

Do you own a property?

  • Place a free listing
  • Services for private advertisers
  • Guide to selling your home
  • Insurance
  • Improve the photos of your listing
  • Value your property for free

Are you a real estate proffesional?

  • Publish your agencies properties
  • Already a client? Log into your account
  • Advertising on Australian Real Estate
  • Australian Real Estate data technology for property insights
  • Real Estate courses