Australia

$3,500,000

74 Kewarra Street, Kewarra Beach, Qld 4879

# Location

Description

Koko on Kewarra Beach

Discover the picturesque natural beauty of 'Koko Residence', at Kewarra Beach, where the rainforest meets the sea.

This absolute beachfront, Bahama inspired tropical escape, is the address for style and exclusivity with direct access to sandy beaches, local resorts and restaurants while retreating to your private and quiet oasis.

Feel the peace and tranquillity while sipping a cocktail on sunset with the sand between your toes or walking your dog on the pristine, palm fringed pet friendly beach on your doorstep.

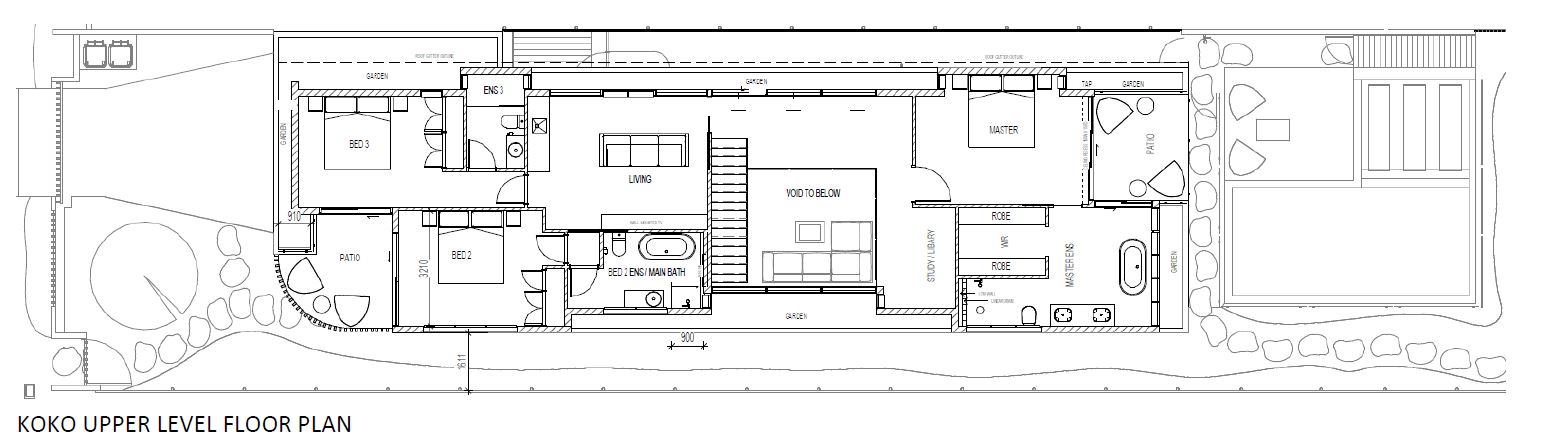
As you enter the sleek designed, four-bedroom, four-bathroom home with stunning light filled, two storey void opening, you will be immediately soothed by the views and sounds of the Coral Sea.

The luxury chic interior design also extends to the kitchen, lounge area and outdoor BBQ area which will be surrounded by beautifully landscaped, and fully irrigated gardens, giving extra privacy and a true sense of retreat.

Located only 20 minutes to the CBD and Cairns domestic & international airport and only few minutes to the local grocer, a leisurely walk or bike ride can also see you making your way, via the shoreside footpath to Clifton Beach and Palm Cove.

This easily maintained, lifestyle focused home on 550m2 of prime beachfront real estate, presents an amazing and rare opportunity for the discerning buyer seeking a luxury holiday rental or executive home.

Designed & developed by the multi-award winning Nathan Verri Pty Ltd team, yet another property to set the benchmark for innovation and timeless modern design. The team's experience and professional approach are integral to the overall & outstanding success of all their projects. You can be confident that you are choosing a superior property that you will be excited to call your own.

Internal Areas

·

350m2 over two sleek levels ·

4 master suites each with their own ensuite ·

Lower level powder room ·

Balconies off all bedrooms ·

Chef's kitchen with scullery ·

Separate kitchenette upstairs ·

Large ceiling void ·

Durable, easy maintained timber look flooring ·

Hi-spec appliances ·

Bespoke cabinetry finishes ·

Stone benchtops with soft-shut cabinetry throughout ·

Seamless indoor-outdoor flow with bi-fold doors to the alfresco area ·

Integrated air-conditioning throughout ·

Raw timber and stone features throughout

External Areas

·

550m2 of prime beachfront real estate ·

Entry gate with intercom ·

Automated gate into driveway ·

Alfresco outdoor kitchen ·

Private swimming pool with water feature ·

Tropical established landscaped gardens ·

Seamless indoor|outdoor flow with bi-fold doors ·

Insect screens throughout

Property Highlights

·

Beachfront, ocean breezes, coral sands & tropical living at its best .

2 minutes drive to local Kewarra Beach grocer & shops ·

20 minutes to Cairns International Airport & City Centre ·

10 minutes to Smithfield shopping hub, including University .

7 minutes to Clifton Beach shopping hub .

10 minutes to Palm Cove .

Dog friendly 'off lead' beach

Masterfully designed by the award-winning Nathan Verri PTY LTD team

3D renders are artist impression only and subject to final design and engineering.

View More #

Floor Plans

Location

  • Contact the agency

    To request an inspection

  • # Call # Email

Susan Plummer

Agent Name

# Report Listing

Looking for a property?

  • Top listings
  • Investment
  • Development
  • Personal home
  • Price reports
  • Suburb reports

Do you own a property?

  • Place a free listing
  • Services for private advertisers
  • Guide to selling your home
  • Insurance
  • Improve the photos of your listing
  • Value your property for free

Are you a real estate proffesional?

  • Publish your agencies properties
  • Already a client? Log into your account
  • Advertising on Australian Real Estate
  • Australian Real Estate data technology for property insights
  • Real Estate courses