Australia

# Sold Price guide over $369,000

208/2 Keem Street, Trinity Beach, Qld 4879

# Location

Description

Coastal Living with the Resort Lifestyle Embrace the FNQ lifestyle or seize the opportunity for a fantastic investment with this two bedroom, top-floor apartment. Located in Marlin Cove resort, it features stunning views of lush tropical landscaping and the resort lagoon pool. This includes access to all of the great amenities, including a sauna, tennis court, lap-style pool and BBQ facilities-perfect for a holiday let or your own tropical escape.

Secure a piece of paradise in this easily maintainable apartment just a short stroll to the sandy shores of Trinity Beach. This well-appointed abode is the perfect opportunity for an investment property or a buyer looking for comfortable living amongst the tropics.

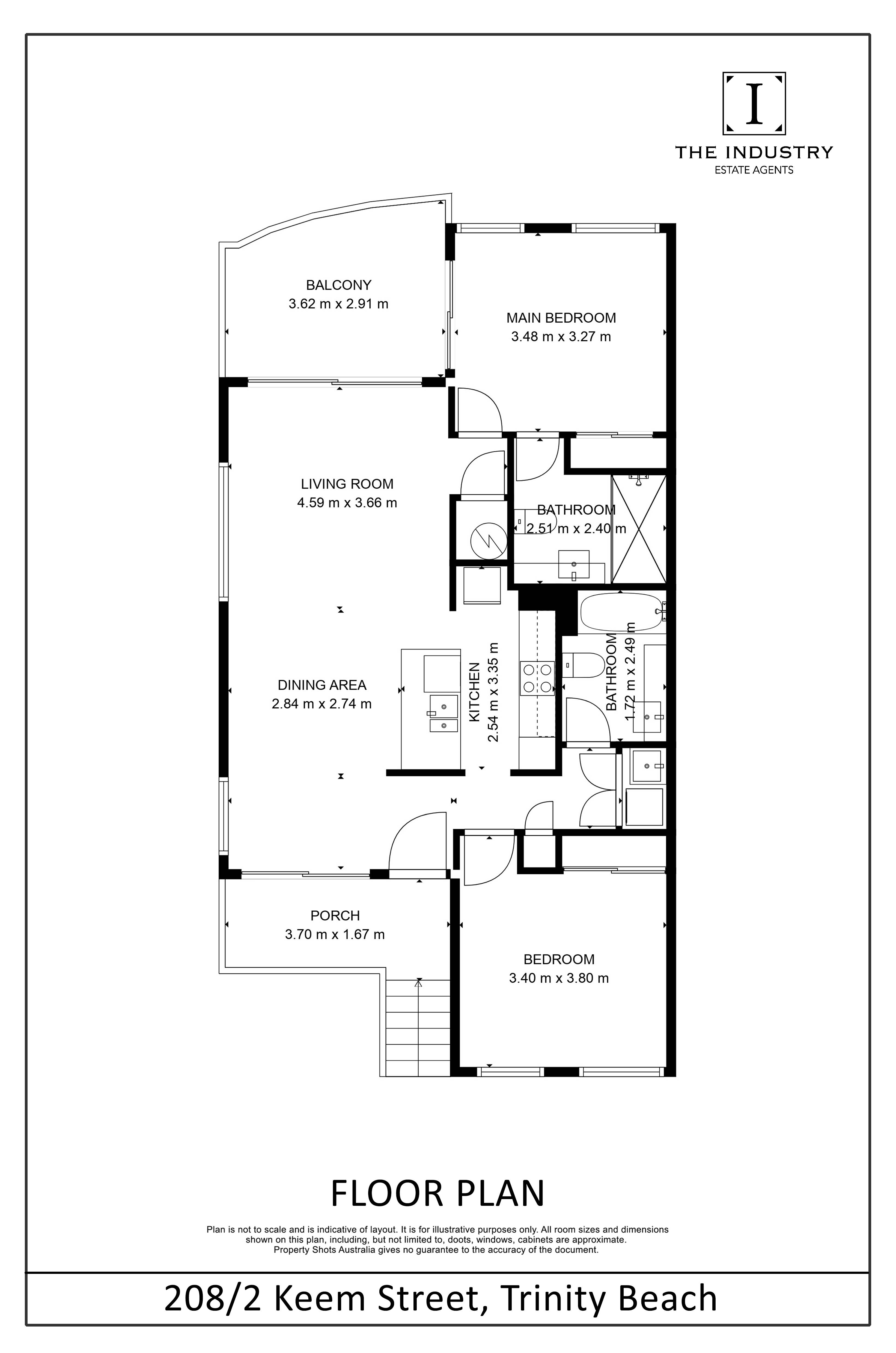
- Spacious open-plan living and dining area filled with natural light - Centrally positioned kitchen featuring ample bench space and storage - Master bedroom with a walk-in wardrobe and ensuite - Generous second bedroom with built-in robe and a leafy outlook - Balcony ideal for year-round entertaining - One car space in an undercover carport, plus ample visitor parking - Complex includes a lagoon style pool, spa, 15m lap pool, full size tennis court, games room, & sauna -Approximately 750m to the Trinity Beach esplanade, cafes, and restaurants, 19.4km to Cairns Airport, and 20km to Cairns CBD

DISCLAIMER All information provided has been obtained from sources we believe to be accurate. However, we cannot guarantee the information is accurate and accept no liability for errors or omissions, (including but not limited to a property's land size, floor plans and size, building age and condition). Interested parties should make their own enquiries and obtain their own legal advice.

View More #

Floor Plans

Location

  • Contact the agency

    To request an inspection

  • # Call # Email

Tyson Burdon

Agent Name

# Report Listing

Looking for a property?

  • Top listings
  • Investment
  • Development
  • Personal home
  • Price reports
  • Suburb reports

Do you own a property?

  • Place a free listing
  • Services for private advertisers
  • Guide to selling your home
  • Insurance
  • Improve the photos of your listing
  • Value your property for free

Are you a real estate proffesional?

  • Publish your agencies properties
  • Already a client? Log into your account
  • Advertising on Australian Real Estate
  • Australian Real Estate data technology for property insights
  • Real Estate courses