Australia

# Sold $1,395,000

14-16 Ellison Street, Clifton Beach, Qld 4879

# Location

Description

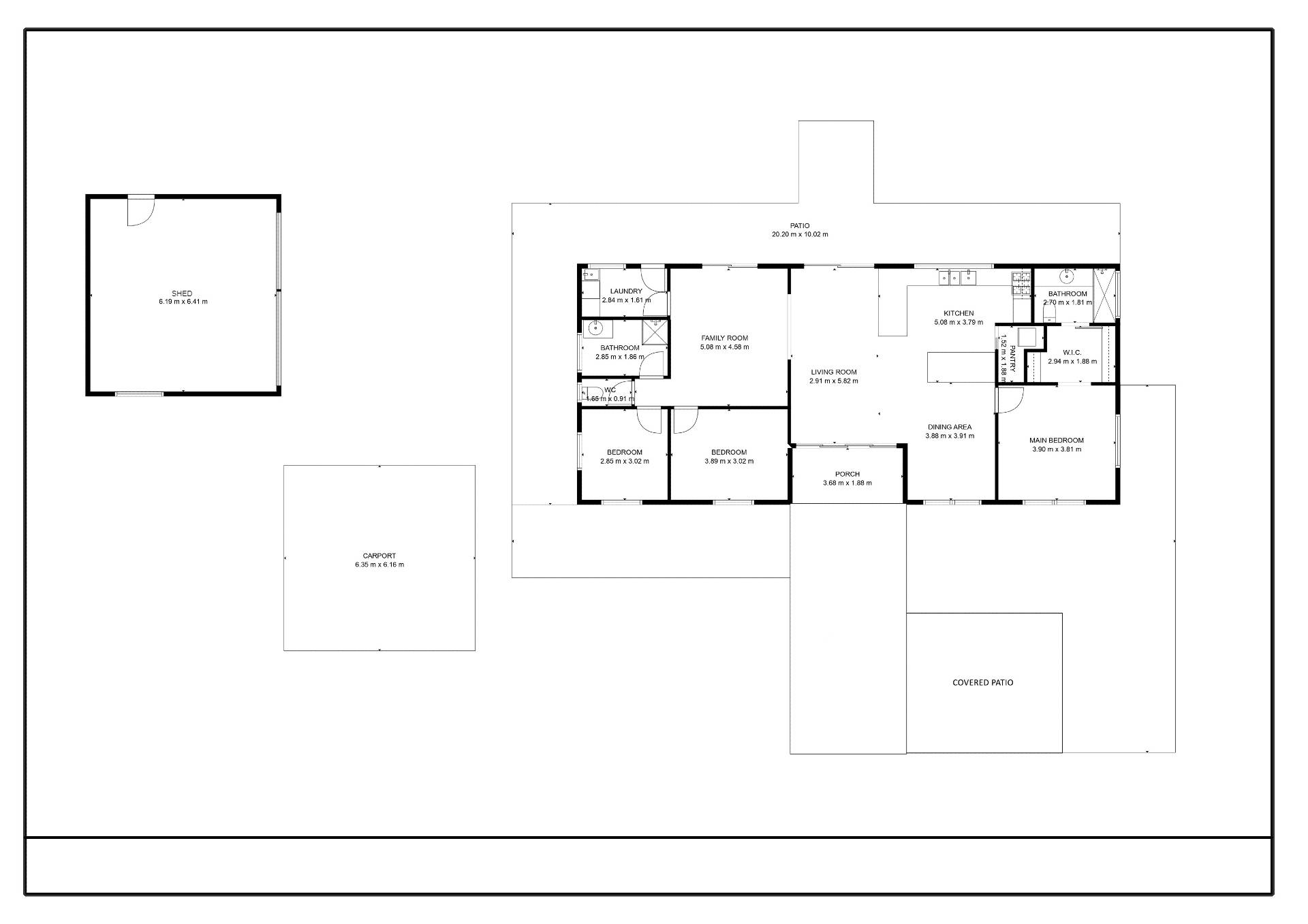
8,040m² flat block with immaculate cottage - perfect for subdivision. This substantial 8,040m2 property situated in a premium location, minutes from the beach, affords a superb opportunity to purchase one of the last flat blocks of this size on the Northern Beaches. The residence is set at the rear of the block, providing the perfect option to capitalise and subdivide into two lots. The immaculately presented home is in its original condition, featuring high ceilings, spacious open-plan living, a large country-style kitchen, and lovely patios on either side. Set against a picturesque mountain backdrop, walking distance from Clifton Village Shopping Centre, the property delivers exciting prospects for both lifestyle and investment.

- Completely flat 8,040m2 block, ideally configured to sub-divide into two - Spacious single-level floorplan, high ceilings and open-plan living - Functional layout includes two patios for al fresco entertaining - Huge kitchen with timber joinery, abundant bench and cupboard space - Separated master with WIR, ensuite and lovely outlook - Original slate floors and feature timber ceilings in living - 2-vehicle carport, large shed, no high-maintenance gardening

- Impressive palm-lined concreted entry driveway - 5-minute walk to Clifton Village Shopping Centre via a pathway - 15 minutes to Smithfield Shopping Centre, 25 minutes to CBD

View More #

Floor Plans

Location

  • Contact the agency

    To request an inspection

  • # Call # Email

Nicholas Slatyer

Agent Name

Renae Slatyer

Agent Name

# Report Listing

Looking for a property?

  • Top listings
  • Investment
  • Development
  • Personal home
  • Price reports
  • Suburb reports

Do you own a property?

  • Place a free listing
  • Services for private advertisers
  • Guide to selling your home
  • Insurance
  • Improve the photos of your listing
  • Value your property for free

Are you a real estate proffesional?

  • Publish your agencies properties
  • Already a client? Log into your account
  • Advertising on Australian Real Estate
  • Australian Real Estate data technology for property insights
  • Real Estate courses