Australia

# Sold Contact Agent for New Price Guide

348/305-341 Coral Coast Drive, Palm Cove, Qld 4879

# Location

Description

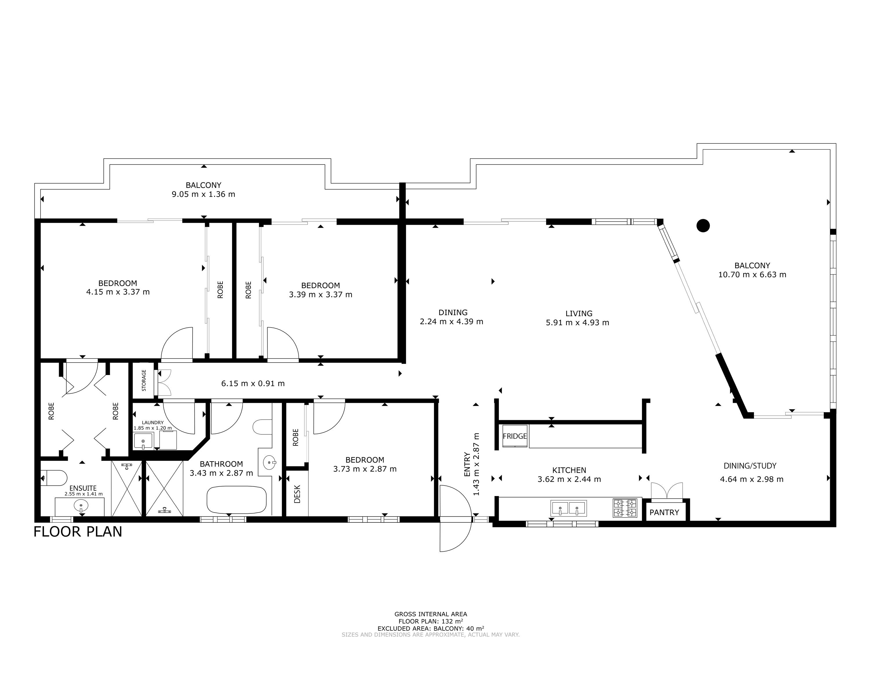
THE Penthouse – Spacious 173 m2 Top Floor Residential Apartment - Palm Cove Living at its Finest This spacious top floor Red Cowrie penthouse in the best location in Coral Coast resort has been renovated and maintained to perfection. Why have the maintenance of a house, when all the hard work can be done for you. Located in a well-established residential resort complex in Palm Cove, only a few minutes' walk to the famous Williams Esplanade with award winning restaurants, cafes', boutiques, and bars.

This apartment has been lovingly owner occupied

and is located on the top floor with 2 lift access. It offers a stunning south easterly aspect with mountain, pool and canopy views, watch the canopy, magnificent bird life and the wallabies down below.

It is vacant and ready to move in.

Features: -

173m2 apartment with designated undercover parking and lockable storage unit - Renovated throughout

- Abundance of storage - Versatile layout with 2 living areas - Renovated kitchen with quality appliances - Main bedroom with ensuite and 3 full sized built in robes - 2 double bedrooms with built in robes and air-conditioning - Pampering main bathroom with spa bath and walk in shower - All-weather full-length balcony

- Separate laundry - 4 resort pools and easy access to a world class gym - Plenty of extra parking - Moderate corporate fees $11,083.12 per year which includes sinking fund, administration fund and insurance levies - Sinking fund balance $815,692.70 in Credit - Administration fund balance $152,318.94 in Credit

Flexible resort that is perfect for residential, short term/holiday let and long-term rental.

Call Shira David Stern on 0428 807 757 for more information.

All information contained herein is gathered from sources we believe to be reliable. This Office and its Agent provide no guarantees or undertakings concerning the accuracy, completeness, or current nature of the information and disclaim all liability in respect of any errors, inaccuracies or misstatements contained herein. Prospective purchasers must undertake their own due diligence, enquiries and assume various searches to verify the information contained herein.

View More #

Floor Plans

Location

  • Contact the agency

    To request an inspection

  • # Call # Email

Shira David Stern

Agent Name

# Report Listing

Looking for a property?

  • Top listings
  • Investment
  • Development
  • Personal home
  • Price reports
  • Suburb reports

Do you own a property?

  • Place a free listing
  • Services for private advertisers
  • Guide to selling your home
  • Insurance
  • Improve the photos of your listing
  • Value your property for free

Are you a real estate proffesional?

  • Publish your agencies properties
  • Already a client? Log into your account
  • Advertising on Australian Real Estate
  • Australian Real Estate data technology for property insights
  • Real Estate courses